PROJETRénovation
Réorganisation jour/nuit
Maison rue Grande la Réal à PERPIGNAN (66)
Un couple perpignanais a pour projet de rénover leur maison située dans le centre-ville de Perpignan.
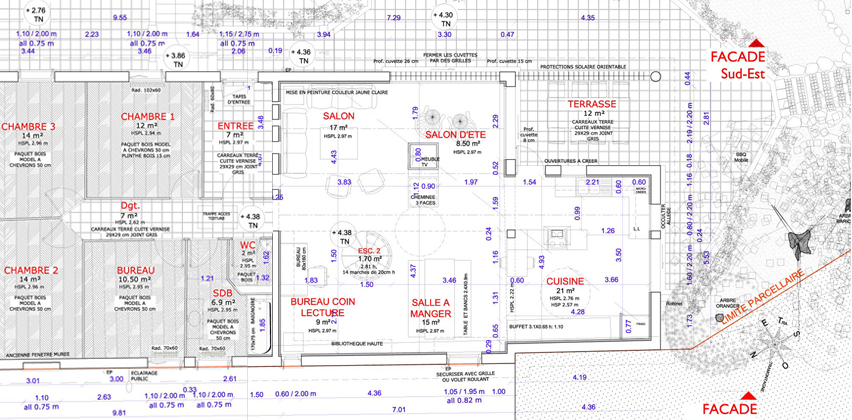
Leur maison est composée de 2 niveaux. Le niveau bas permet d’accéder aux garages des véhicules. On accède au niveau haut directement par la rue; il est composé de pièces de vie et de nuit et d’un grand jardin arboré et planté.
L’objectif du projet est de travailler sur :
Leur maison est composée de 2 niveaux. Le niveau bas permet d’accéder aux garages des véhicules. On accède au niveau haut directement par la rue; il est composé de pièces de vie et de nuit et d’un grand jardin arboré et planté.
L’objectif du projet est de travailler sur :
- les accès,
- les circulations internes,
- redéfinir des espaces en fonction des besoins du couple.
- Réunir les 2 niveaux en créant une circulation verticale : un ascenseur.
- Réorganisation de la pièce de vie et des chambres.
Date
Etude 2011-2013
Surface de plancher
SHON : 309 m²
Mission :
Esquisse, Avant projet, Permis de construire, Dessin d'exécution
Collaboration : EDIFICAT
